Bioklimatická pergola APEX 3,6x4 m, hliník - volně stojící
- Doprava ZDARMA

- Kompletní specifikace
Bioklimatická pergola APEX 3,6x4 m, hliník - volně stojícíSkladem 5 ks69 000 Kč/ ks57 025 Kč bez DPH
Prémiová zahradní hliníková volně stojící bioklimatická pergola o rozměrech 3,6x4 metrů představuje ideální způsob zastřešení Vašeho venkovního posezení.
Velmi pevná a stabilní konstrukce v antracitové barvě RAL 7016, v matné povrchové úpravě se hodí do každého prostoru, není zapotřebí vrtat do stěny. Pergola je vyrobena z vysoce kvalitního hliníku, který je ošetřen práškovou barvou, což zaručuje odolnost vůči povětrnostním vlivům.

Oproti ostatním bioklimatickým pergolám má pergola APEX střechu SEDLOVOU, což dodá prostoru jiný rozměr.
Celkem 52 nastavitelných otočných lamel Vás ochrání nejen před sluncem, ale i před deštěm. Lamely jsou rozděleny do 4 zón. Každou tuto část je možné ovládat zvlášť. Lamely lze otáčet od 0°, kdy docílíte úplně uzavřené střechy až do 135°, díky čemuž získáte skvělou mobilitu a možnost zastínit slunce z jakékoliv strany.
Lamely lze ovládat jednoduše manuálně pomocí kličky. Ta je navržena tak, aby šla jednoduše naklonit, aby při otáčení lamel nedocházelo k poškrábání konstrukce pergoly. Zároveň je klička na konstrukci umístěna tak, aby při doplnění pergoly o zástěny či panely nebránila ve snadné manipulaci s těmito doplňky.

Ke svodu vody dochází unikátním drenážním systémem přímo uvnitř konstrukce. Lamely jsou schopné odvést opravdu velké množství vody až 17 l/m2 za hodinu. V zimních měsících je zapotřebí ponechat lamely ve svislé pozici. I přesto jsou lamely schopné unést 10-15 centimetrovou vrstvu sněhu, což představuje zátěž přibližně 50 kg/m2. Toto zatížení však nemůže být dlouhodobé.
Boční strany (4 m) pergoly lze doplnit o zástěny. V nabídce máme zástěnu 4 m s hliníkovou konstrukcí a výplní z textilenu, která poskytne ochranu před větrem. Pergolu je také možné doplnit i o stínicí panely s fixními či sklápěcími horizontálními lamelami pro dodatečné soukromí a zastínění.
Díky skvělým vlastnostem, detailnímu zpracování a modernímu designu bioklimatické pergoly využijete venkovní posezení mnohem častěji.
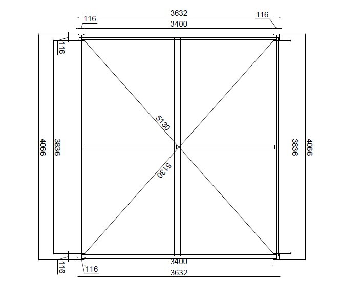
Robustní sloupek má rozměry 116x116 mm, při instalaci je zapotřebí počítat s patkou sloupku o rozměrech 160x160 mm. Patka je z 8 mm silné oceli a je navíc zakryta hliníkovým krytem (165x165 mm) s integrovaným drenážním systémem. Vyvýšený hliníkový profil ukrývá lamely tak, že z bočního pohledu nejsou viditelné a jsou v jedné linii s profilem.


S bioklimatickou pergolou si můžete užívat maximum slunečních paprsků, zároveň se můžete proti těmto paprskům i chránit správným nastavením lamel. Pergola též umožňuje snadnou ventilaci prostoru a naopak dokonalý přístřešek v případě deště.

HLAVNÍ VÝHODY
- 52 hliníkových lamel
- rozdělená střešní část na 4 zóny
- vyvýšená horní lišta hliníkového profilu - lamely nejsou vidět ani při otáčení
- integrovaný drenážní systém
- celohliníková konstrukce
- nejsou viditelné spojovací prvky, šrouby - hladká konstrukce
Potřebujete poradit?































